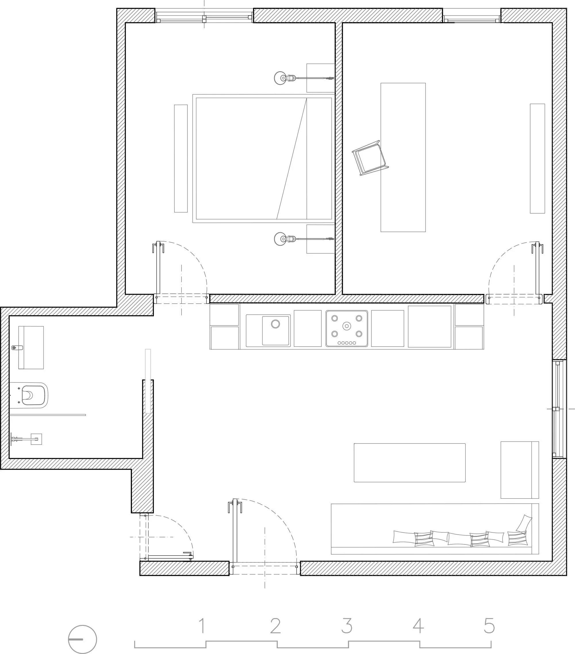
Proyecto residencial
50 m2
Puerta del Angel, Madrid
2023
Proyecto residencial
50 m2
Puerta del Angel, Madrid
2023